rycerka dw
Projekt domu mieszkalnego parterowego, z poddaszem mieszkalnym.
Najniższa cena z 30 dni przed uruchomieniem
obecnej promocji: 5280 zł
powierzchnia użytkowa116.35 m²
+część gospodarcza21.33 m²
powierzchnia zabudowy120.96 m²
powierzchnia netto169.73 m²
kubatura595.9 m³
kąt nachylenia dachu35°
wys. kalenicy7.64 m
min. wymiary działki22.47x17.6 m
(z opinią p.poż.)
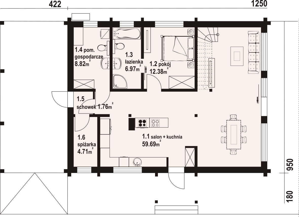
parter
poddasze
przekrój
| 1.1 salon + kuchnia | 59,69 m² |
| 1.2 pokój | 12,38 m² |
| 1.3 łazienka | 6,97 m² |
| 1.4 pom. | 8,82 m² |
| 1.5 schowek | 1,76 m² |
| 1.6 spiżarka | 4,71 m² |
| razem: | 94,33 m² |
| 2.1 komunikacja + antresola | 11,89 (14,07) m² |
| 2.2 pokój | 10,86 (12,52) m² |
| 2.3 łazienka | 7,49 (16,32) m² |
| 2.4 pokój | 7,07 (15,36) m² |
| 2.5 garderoba | 6,04 (13,19) m² |
| razem: | 43,35 m² |
Informacje szczegółowe
Powierzchnia dachu:
254.94 m²
Wysokość ścianki kolankowej:
0.41 m
Strop:
drewniany
Pokrycie dachu:
dachówka gontopodobna Gerard Corona
Ściany zewnętrzne:
płazy drewniane + wełna mineralna + deska
Ściany wewnętrzne:
płazy drewniane
Typ ogrzewania:
pompa ciepła



.jpg)

.jpg)















